Description
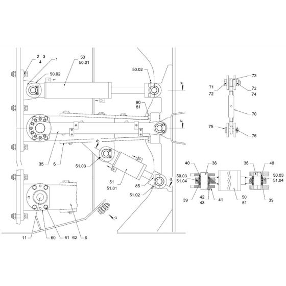
The Centre Pivot Assembly for Hamm HD90 (H245) Rollers is crucial for maintaining the machine's stability and manoeuvrability. This assembly includes components such as bearings, pins, and bushings, which work together to ensure smooth operation and alignment. Designed for durability, these genuine Hamm parts help extend the lifespan of your roller by providing reliable performance under demanding conditions.
Reviews
Add a review
Write Your Own Review
Ask a Question
Customer Questions

